横浜市南区にお住まいのyokoさまよりLAN工事のご依頼を頂きました。yokoさまのご実家にて各部屋にLAN配線をしたいとの事で伺いました。
| 建物の構造 | : | 木造在来軸組み工法2階建て(駐車場半地下) |
| 販売体系 | : | 注文住宅 |
| 完成日 | : | 不明 |
| ネット回線 | : | Yahoo!BB光 |
yokoさまのご希望
- 各部屋にLANケーブルを配線したい。駐車スペースが半地下になっていて各部屋が段違いになっている少し変わった間取りなので、可能な限り配線をお願いしたい。
- 特にリビング(テレビ裏)への配線を一番にお願いしたい。現在は無線で飛ばしているがたびたび切断されてかなり不満。
新築ではない木造住宅は、そのほとんどで埋め込み配線できるスペースがありますので、自分のノウハウを発揮することができます。2日間に渡っての作業でしたが、とても楽しく配線させていただきました。
1F平面図
和室へはリビングから入るのですが、床面の高さが違うので階段を上る必要があります。
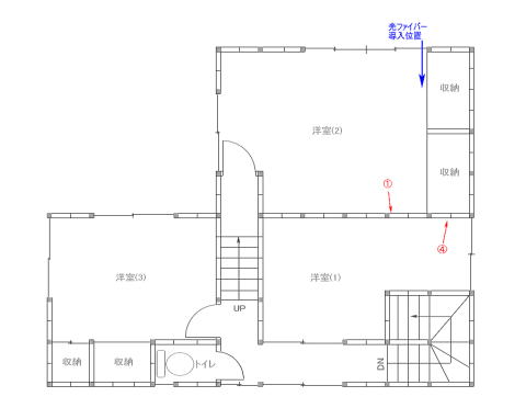
2F平面図
洋室(2)に光ファイバーケーブルが導入されています。この部屋のコンセントにLANコンセントを設置して各部屋にLANケーブルを配線したいと思います。
立面断面図

平面図ではわかりにくい部分も立面図を見るとイメージしやすいです。建物を横から見ると、半地下の駐車スペースの影響で各部屋の床面高さに差が出ています。少し変わった構造の住宅ですが埋め込み配線にはかえって好都合でした。
2Fから1FへLANケーブルを配線
![]() 拡大表示 ![]() 拡大表示 |
最初に2Fの洋室(2)にあるコンセントを開けて配線経路を確保します。 場所は2F平面図の①です。 |
|---|---|
![]() 拡大表示 |
壁の中の様子です。 余裕でケーブルを通すスペースがありますので、キレイな埋め込み配線が可能です。汚れは気にしません(^^) |
![]() 拡大表示 |
呼び線を入れて下の階の天井裏までルートを確保します。 壁の中にあれだけスペースがあればすんなりと通ってくれるはずです。 |
![]() 拡大表示 |
2階の洋室(2)の真下、和室にある天袋です。(向かって左側の天袋 場所は1F平面図の②です) 押入れの天井は持ち上げることができる場合がありますが、ここは左右2箇所がそうなっていました。とてもありがたいですね。 |
![]() 拡大表示 |
天袋の天井を持ち上げたところ。 天井点検口より間口が広いので作業しやすいです。 |
![]() 拡大表示 |
上から入れた呼び線がちょうどいい具合に下りてきています。(1F平面図の③) この段階で、このスペースにHUBを設置すればいいかな?とイメージしています。 |
![]() 拡大表示 |
呼び線を利用してLANケーブルとここに設置するHUB用の電源線を配線します。 電源線はさらに2F洋室(1)に新設するコンセントに渡るようになります。 |
![]() 拡大表示 |
洋室(2)のコンセントを拡張して、LANコンセントを取り付けるためのスペースを作ります。 1連の埋め込みスイッチボックスを外して穴を広げ、2連の埋め込みスイッチボックスを埋め込みます。その際、先に通しておいたLANケーブルと電源線をボックスに通します。 仕上がった写真は・・・撮り忘れましたorz |
2F洋室(1)への配線
![]() 拡大表示 |
洋室(1)に新設するコンセント予定位置です。(2F平面図の④) この壁の向こうは和室の天井裏です。呼び線を通したところになるので配線は楽にできると思います。 |
|---|---|
![]() 拡大表示 |
ボックスの穴をケ書いて穴あけです。 ボックス穴は電源コンセントとLANコンセントを設置するので2個用です。 |
![]() 拡大表示 |
和室の天井裏から壁に差し込んだファイルソーが見えます。 位置は特に問題なさそうです。 |
![]() 拡大表示 |
ケ書いた線に合わせて穴をあけて |
![]() 拡大表示 |
和室の天井裏からLANケーブルと電源線を通してパネルボックスを設置します。 |
![]() 拡大表示 |
電源コンセントとLANコンセントを設置。 プレートをつけた写真をまたまた撮り忘れました・・・ |
![]() 拡大表示 |
和室天井裏内にコンセントを設置。HUBの電源です。(1F平面図の③) |
![]() 拡大表示 |
HUBを設置しました。電源コンセントとの位置関係はこんな感じです。 洋室(2)と洋室(1)からのLANケーブルを接続しています。 |
1F和室への配線とLANコンセントの設置
![]() 拡大表示 |
同じく和室天井裏から和室への配線をします。(1F平面図の⑤) 和室の室内側へ呼び線を通しますが、うまく下まで通ってくれません。 |
|---|---|
![]() 拡大表示 |
長押(なげし)が邪魔をしているようです。 |
![]() 拡大表示 |
LANコンセントの位置は長押の上でも構わないと指示頂きましたので、あまり使い勝手は良くありませんが高い位置に設置しました。 線が下まで行かないので仕方ありません・・・ |
ここまでで1日目の作業は終了となりました。2日目はこのLAN工事のメインである1Fリビングのテレビ裏への配線と、2F洋室(3)への配線です。上手く配線できるといいのですがどうなることでしょうか。
今回のLAN工事では和室の天袋から天井裏に入れたことが大きなポイントです。ここに入れたことで埋め込み配線が容易にできるようになっています。建売住宅等では収納の天井が持ち上がる構造にはなっていないことが多いので、これからマイホームを新築しようとお考えでしたら収納の天井から天井裏へアクセスできるようにしておくのもいいかもしれませんね。






















